Te koop
1 slpkamerapp op gelijksvloers
Stationsstraat 66 A001 4, 8370 Blankenberge
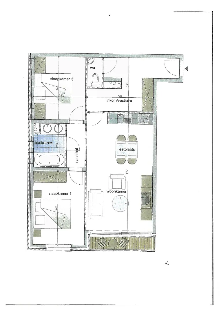
Dit moderne trendy gelijkvloers appartement zit vol ongeduld op jouw te wachten. Dit appartement gelegen in de Residentie 'Seagarden Village' biedt u een oase van rust en dit op een boogscheut van de zeedijk. Het pand bestaat uit een ruime inkomhal met inbouwkasten, een moderne leefruimte met uitgeruste keuken, een ruime badkamer met bad, een afzonderlijk toilet, een volwaardige slaapkamer en een binnenkamer/polyvalente ruimte die kan benut worden als dressing, extra slaapruimte of bureau of... Op het zuidoost gerichte balkon kan u genieten van een zalige portie vitamine D. Daarenboven beschikt u over de mogelijkheid tot afz. aankoop van een overdekte parking. Voel je je aangesproken? Neem dan zeker contact op met ons.
Betreft een project onder erfpacht.
Algemene info
| Adres | Stationsstraat 66-A001/4 Blankenberge |
| Residentie | SEAGARDEN A |
| Referentie | SEAGARDEN A0.01 (0004) |
| Vraagprijs | € 170.000 |
| Type | Benedenwoning |
| Beschikbaar vanaf | Bij akte |
| Bewoonbaar opp. * * totale indicatieve oppervlakte basis EPC-attest | 72 m² |
| Bouwjaar | 2011 |
| Algemene staat | Instapklaar |
Indeling
| Extra binnenkamer | Ja |
| Slaapkamers | 1 |
| Badkamers | Ja |
| WC | Ja |
| Woonkamer | Ja |
| Keuken | Ja, Open keuken, Ingericht met toestellen |
| Terras | Ja |
Comfort
| Gemeubeld | Ja |
| Raamwerk | Hout |
| Dak | Lessenaarsdak |
| Dakbedekking | Dakpannen |
| Beglazing | Hoogrendementsglas |
| Elektriciteit | Conform |
| Verwarming | Elektriciteit - Convectie |
| Verwarmd water | Elektriciteit - Elektrische voorraad 100L |
| Lift | Ja |
| Rookdetector | Ja |
| Videofoon | Ja |
Wettelijke gegevens
| Niet geïndexeerd K.I. | € 745 |
| Opmerking | KI parking: 133,00 EUR |
| EPC Certificaat Nr. | 20200825-0002307556-RES-1 |
| EPC Index | 301,00KWh/m²/jaar |
| EnergyClass | D |
| EPC Opmaakdatum | 25/08/2023 |
| EPC Geldig tot | 25/08/2033 |
| Stedenbouwkundige vergunning | Ja |
| Voorkooprecht | Ja |
| Verkavelingsvergunning van toepassing | Neen |
| Stedenbouwkundige bestemming | Woongebied |
| Dagvaarding en herstelvordering | Geen rechterlijke herstelmaatregel of bestuurlijke maatregel opgelegd |
| Overstromingsgevoelig | Geen overstromingsgevoelig gebied |
| Overstromingsgebied | Geen afgebakende zones |
| Overstromingskans perceel (P-score) | |
| Overstromingskans gebouw (G-score) | |
| Erfgoed | Geen beschermd erfgoed |